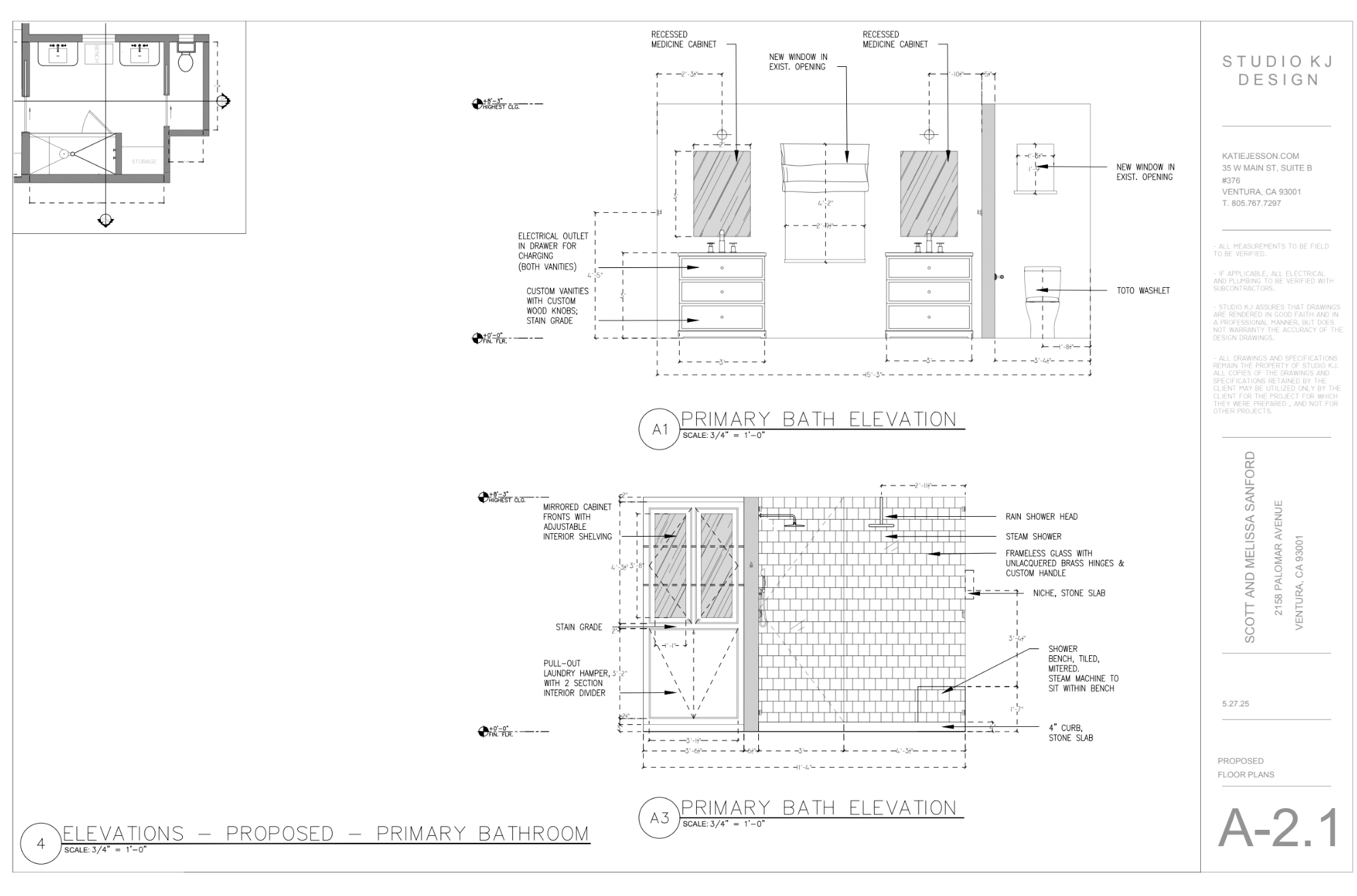
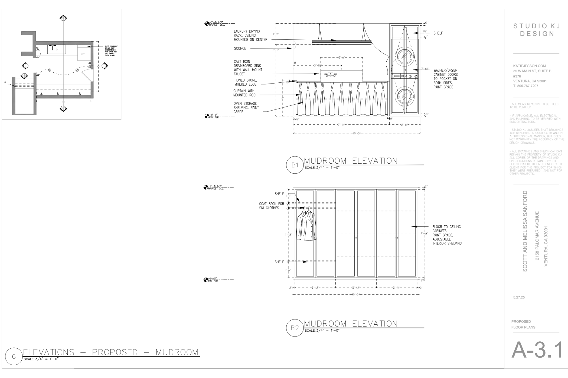
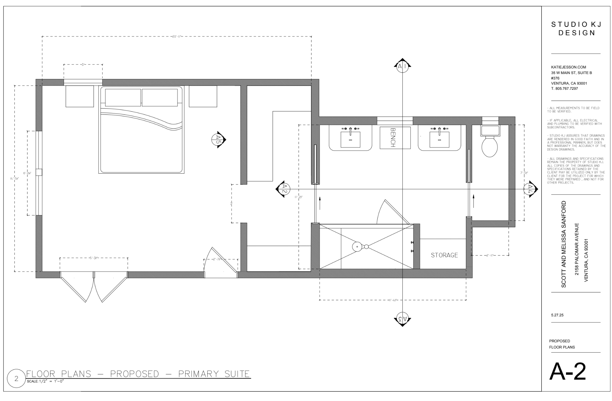
PALOMAR HILLS - PRIMARY SUITE + MUDROOM
A Primary Suite and Mudroom remodel of a Spanish house in the hills of Ventura, CA. Including floor plans, elevations, renderings.
A Primary Suite and Mudroom remodel of a Spanish house in the hills of Ventura, CA. Including floor plans, elevations, renderings.