PARK CITY
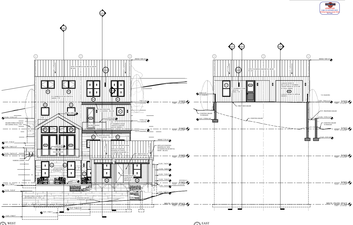
New build, fully custom construction of a 4 story, 5,500 sq ft Wabi Sabi mountain home in Park City, Utah. Including floor plans, elevations, materials, furnishings, accessories, window treatments.
New build, fully custom construction of a 4 story, 5,500 sq ft Wabi Sabi mountain home in Park City, Utah. Including floor plans, elevations, materials, furnishings, accessories, window treatments.